Woning met ruime loods en tuin op toplocatie in Keerbergen

Putsebaan 87, 3140 KEERBERGEN

  • 3
  • 1
  • 725 m²
  • 1.264 m²

€ 379.000

Contacteer ons

Woning met ruime loods en tuin op toplocatie in Keerbergen

Op een gunstige ligging langs de Putsebaan 87 te Keerbergen bevindt zich deze te renoveren woning met uitzonderlijk potentieel, ideaal voor wie wonen en werken wil combineren of op zoek is naar grote opslag- of ateliermogelijkheden.
De woning beschikt over drie volwaardige slaapkamers en biedt een solide basis om volledig naar eigen smaak te renoveren. Via een doorgang met hoge poort aan de woning krijgt men toegang tot het achterliggende perceel.
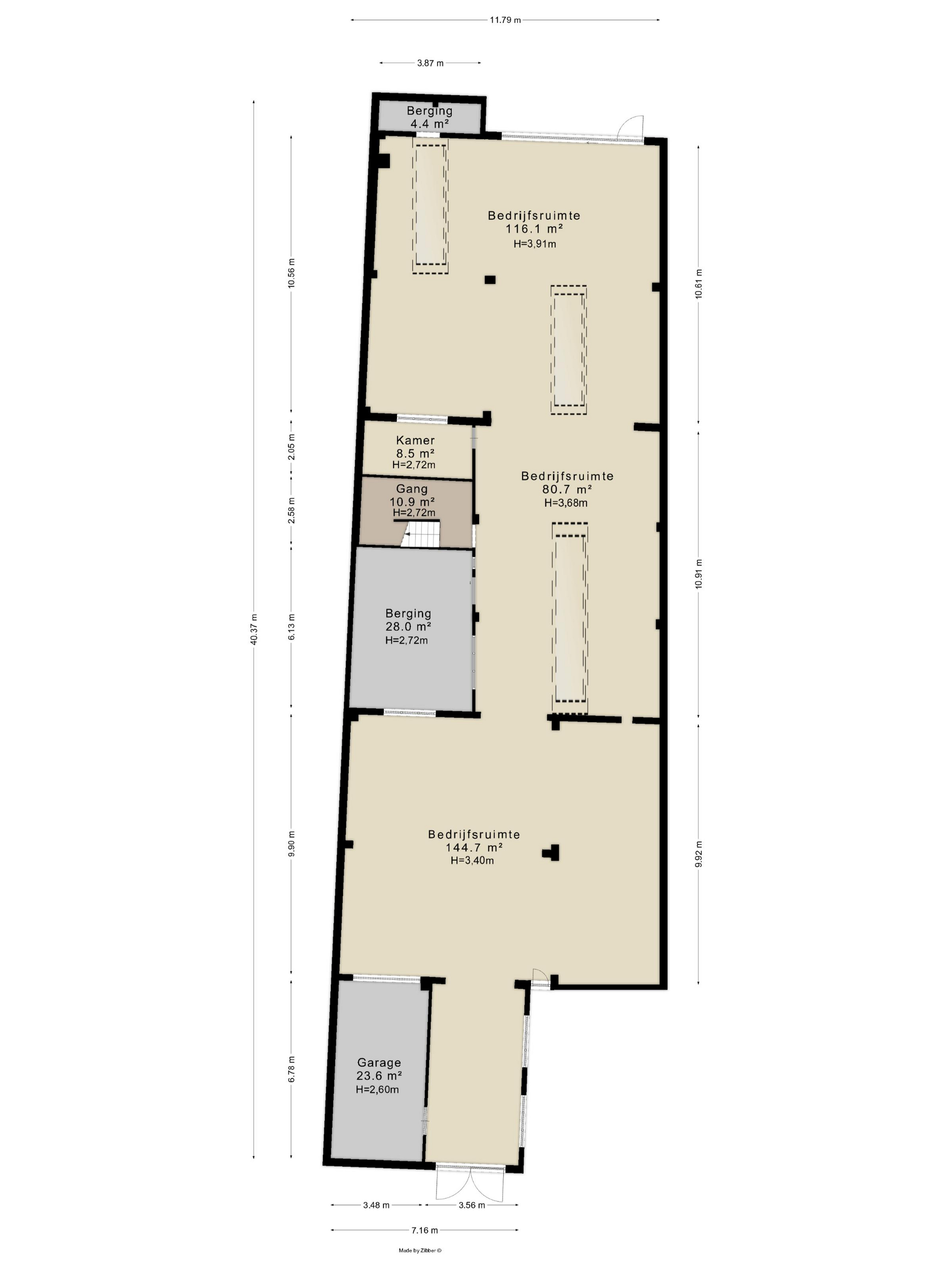
Achter de woning bevindt zich een indrukwekkende loods van ca. 600 m² (voormalige garage), geschikt voor diverse doeleinden zoals opslag, atelier, werkplaats of hobbyruimte. Achter de loods ligt bovendien nog een tuin van ca. 500 m², wat zorgt voor extra buitenruimte en rust.
Troeven op een rij:
Woning met 3 slaapkamers
Doorgang met hoge poort naar achterliggend terrein
Ruime loods van ca. 600 m²
Extra tuin van ca. 500 m² achter de loods
Veel mogelijkheden voor zelfstandigen, hobbyisten of investeerders
Gelegen in het groene en gegeerde Keerbergen
De algemene staat van het geheel is te renoveren, wat de koper de kans biedt om dit eigendom volledig naar eigen wensen in te richten en het maximale potentieel te benutten.
Een unieke opportuniteit voor wie ruimte, mogelijkheden en een centrale ligging weet te waarderen.

EPC: 579kWh/m2jaar 
EK: Niet-conform
Asbest: Niet asbestveilig 
P score: B G score: A

Nieuw

Financieel en beschikbaarheid

Nettoprijs
€ 379.000,00
Beschikbaarheid
Vanaf akte
Kadastraal inkomen
€ 1.160,00

Gebouw

Bewoonbare opp.
725 m²
Constructie
Gesloten
Bouwjaar
1950
Staat
Te renoveren
Gevelbreedte
10 m
Type dak
Puntdak

Terrein

Perceel opp.
1.264 m²
Terreinbreedte
10 m
Terreindiepte
82 m
Tuin
500 m²

Indeling

Slaapkamers
3
Badkamers
1
Toiletten
1
Kelder
Ja
Terrasoppervlakte
60 m²
Terras
Ja

Parking

Parking
25

Technieken

Elektriciteit
Ja

Comfort

Aansluiting riolering
Ja
Aansluiting gas
Ja
Aansluiting water
Ja

Energie

EPC
579 kWh/m²
EPC unieke code
20251113-0003732804-RES-1
Datum EPC certificaat
13 november 2025
Type ramen
Hout
Elektriciteitskeuring
Ja
Verwarming
Gas
Type verwarming
Individueel

Stedenbouwkundige informatie

Bestemming
Woongebied
Dagvaarding
Geen rechterlijke herstelmaatregel of bestuurlijke maatregel opgelegd
G-score
A
P-score
B
Kadaster sectie
B
Kadaster nummer
0240/00T002
Kadaster opp.
1.264 m²
Bodemattest
Aanwezig
Datum bodemattest
14 november 2025
Beschrijving bodemattest
Deze grond is opgenomen in het gronden informatie register
Asbestinventarisattest
16 november 2025, asbest gevonden, verwijdering verplicht

Documenten

128402_13347_503374_CERTIFICAAT_20251113_0003732804_RES_1_PUTSEBAAN_87.PDF
download PDF
128402_30204_501569_ASBESTATTEST_PUTSEBAAN_87__3140_KEERBERGEN.PDF
download PDF
128402_42461_503108_RAPPORT_EI1_V2__2020_06_012702773__1__PUTSEBAAN_87.PDF
download PDF
116860_2D_Kelder_Putsebaan_87_Keerbergen_05.jpg
download JPEG
116860_2D_Tweede_Verdieping_Putsebaan_87_Keerbergen_03.jpg
download JPEG
116860_2D_Bedrijfsruimte_Putsebaan_87_Keerbergen_04.jpg
download JPEG
116860_2D_Bedrijfsruimte_Putsebaan_87_Keerbergen_06.jpg
download JPEG
116860_2D_Eerste_Verdieping_Putsebaan_87_Keerbergen_02.jpg
download JPEG
116860_2D_Gelijkvloers_Putsebaan_87_Keerbergen_01.jpg
download JPEG
116860_2D_Gelijkvloers_Tuin_Putsebaan_87_Keerbergen_07.jpg
download JPEG

Interesse?
Contacteer Hendrik

Stuur ons een mailtje of bel 0472 22 22 04

Neem contact op plan uw bezoek
Hendrik De Brouwer

Interesse?
Contacteer ons voor een plaatsbezoek

Hendrik De Brouwer

0472 22 22 04

hendrik@factumvastgoed.be

Huis te koop in KEERBERGEN

3140 Keerbergen

Woning met ruime loods en tuin op toplocatie in Keerbergen

Gelieve uw voornaam in te vullen
Gelieve uw naam in te vullen
Gelieve uw e-mail in te vullen
Gelieve uw telefoon in te vullen

Gelieve uw uw bericht in te vullen

Gelieve akkoord te gaan met onze algemene voorwaarden

Op zoek naar iets nieuws maar…

je woning moet eerst nog verkocht worden?

Vraag een gratis schatting

Gratis schatting

je ideale woning stond niet in dit lijstje?

Laat ons weten wat je zoekt

Ik ben op zoek naar…
Gratis schatting